Quadrilocale in vendita

Castel Bolognese, Via Umberto I
€ 165.000
Prezzo aggiornato
4 locali 4 locali
113 Mq 113 Mq
1 bagno 1 bagno

Quadrilocale in vendita

Castel Bolognese, Via Umberto I

Descrizione annuncio

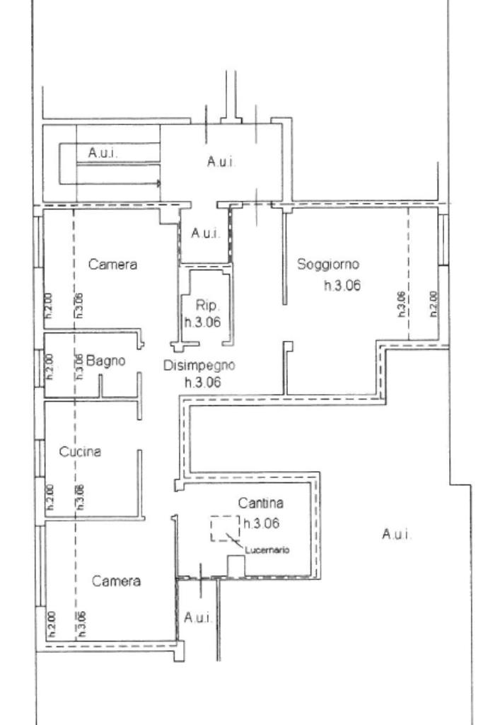
La soluzione abitativa si trova al quarto piano di un contesto condominiale servito da montascale e ascensori nuovi nella zona centrale del paese.

L' appartamento si compone di un ampio soggiorno e una cucina abitabile e finestrata, separati fra loro.

Due camere da letto matrimoniali e una stanza al piano utilizzata come terza camera contraddistinguono la zona notte.

Il piano é completato da bagno finestrato con box doccia e ripostiglio.

L'appartamento include anche un garage di proprietà e un giardino comune.

Per ulteriori informazioni o per organizzare una visita potete contattarci al 0546 54022 o al 345 6644275 (Naldoni Stefano).
Mostra tutto

Nelle vicinanze

Trasporto pubblico Trasporto pubblico
Castel Bolognese-Riolo Terme
Castel Bolognese-Riolo Terme
730 m
Scuole Scuole
Scuola Di Musica Nicola Utili
100 m
Scuola dell'infanzia San Giuseppe
250 m
Scuola Primaria C. Bassi
280 m
Scuola secondaria Giovanni Pascoli
410 m
Istituto Comprensivo C. Bassi
440 m
Farmacia Farmacia
Farmacia Ghiselli
40 m
Farmacia Bolognini
250 m
Farmacia del Borgo
470 m
Ospedali Ospedali
Casa della salute
140 m
Supermercati Supermercati
Dpiù Discount
1,3 Km
Negozi Negozi
Conad Margherita
470 m
Bar Bar
Discoteca Le Cupole
500 m
Cafe Moito
570 m
Bar Industria
1,3 Km
Vassallo
1,7 Km
Il rubacuori
1,9 Km
Ristoranti Ristoranti
Il Kiwi
520 m
Ristorante Wok Sun
1,3 Km
Casa dei Servi
2,1 Km
Mostra tutto

Caratteristiche

Rif.:
61161123
Piano:
4 di 4 con ascensore (Piano alto)
Box:
1
Camere da letto:
2
Arredamento:
Completo
Condizionamento:
Autonomo
Mostra tutto
Prezzo Prezzo
€ 165.000
Rata mutuo Rata mutuo
€ 778 / mese
Spese annue Spese annue
€ 650
Proponi il tuo prezzoProponi il tuo prezzo

Classe Energetica

F
F
F
F
F
F
F
F
F
EP globale non rinnovabile:
100.00 kW h/m² anno
EP globale rinnovabile:
50.00 kW h/m² anno
EP invernale del fabbricato:
EP estiva del fabbricato:
Riscaldamento:
Autonomo
Tipo impianto:
A radiatori
Tipo alimentazione:
Metano

Prezzo ridotto di €1 (5%%)

Ti interessa visionare l'immobile?

Fissa un appuntamento  Fissa un appuntamento

Richiedi informazioni

Clicca su Leggi per aprire l'informativa
* Questi campi sono obbligatori

Calcola il tuo mutuo

Semplice e senza impegno
Anticipo

( % )
Mutuo

( % )

pochi semplici passi

inserisci i tuoi dati
Questionario completato
Grazie per aver richiesto un appuntamento senza impegno con un nostro Consulente del Credito e Assicurativo.

Hai inserito correttamente tutti i dati necessari e a breve riceverai una e-mail con un link da convalidare per inviare i tuoi dati.
Affiliato
San Biagio Immobiliare Srl
Via Garavini, 38/40 48014 Castel Bolognese (RA)

Il nostro staff


  • Davide Albonetti
    Affiliato

  • Elmar Randi
    Affiliato

  • Stefano Naldoni
    Collaboratore

  • Nicolas Roma
    Collaboratore
Via Garavini, 38/40 48014 Castel Bolognese (RA)
Zona: Castelbolognese-Riolo Terme
Mostra su mappa
Orari: dalle 09.00 alle 13.00 e dalle 15.00 alle 19.00; il sabato dalle 09.00 alle 12.30.
Affiliato
San Biagio Immobiliare Srl
Via Garavini, 38/40 48014 Castel Bolognese (RA)

2026 Tecnocasa Franchising S.p.A. - P. IVA 08365160152 - Via Monte Bianco 60/A 20089 Rozzano (MI). Ogni agenzia ha un proprio titolare ed è autonoma. Privacy policy | Policy utilizzo | Cookie policy